U gebruikt een verouderde internetbrowser.
We raden u aan om de meest recente internetbrowser te installeren voor de beste weergave van deze website.
Een internetbrowser die up to date is, staat ook garant voor veilig surfen.

Bontestraat 25, 9620 Zottegem
Vraagprijs: € 135.000

Omschrijving

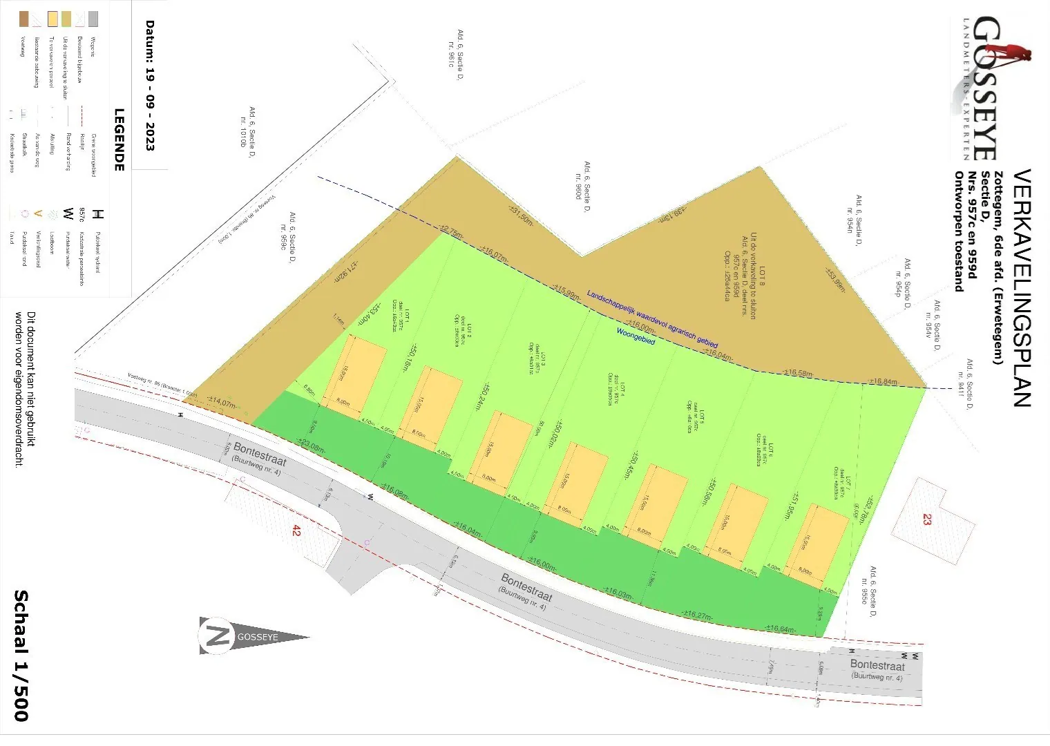
Bouwgrond voor open bebouwing op +/- 8 are te Zottegem

Deze verkaveling situeert zich langsheen de Bontestraat te Sint-Maria-Oudenhove, de gronden zijn uiterst landelijk doch vlot bereikbaar gelegen. Men bevindt zich op +/- 1,5km van de dorpskern van Sint-Maria-Oudenhove zijnde op wandel- of fietsafstand van winkel, horeca, schooltje, cashautomaat, bakker, ... De gronden hebben allen een straatbreedte van +/- 16m en een diepte van +/- 50m.
Bouwbreedte: 8m, bouwdiepte: 15m, bouwvrije zijdelingse strook: 4m, zie verkavelingsplan en -vergunning.
Omwille van het terreinniveau en om de visuele impact in het straatbeeld te beperken is volgens de vergunning 1 ondergrondse bouwlaag (inpandige garage, inkom, slaapkamers), 1 volwaardige bouwlaag boven het maaiveld aangewezen, afgewerkt met een hellend of plat dak.Tuinhuisjes in de achtertuin zijn stedenbouwkundig en ruimtelijk aanvaardbaar. Het is aangewezen dat elke woning voorzien is van een inpandige garage waardoor door de plaatselijke uitgraving in het talud er op eigen terrein in de voortuin geparkeerd kan worden.
Woongebieden, landschappelijk waardevolle agrarische gebieden, geen vergunning uitgereikt, geen rechterlijke herstelmaatregel of bestuurlijke maatregel opgelegd, geen voorkooprecht, verkavelingsvergunning uitgereikt. P-score: A, G-score: ONBEKEND. Geen risicozone voor overstromingen.
U kan de beschikbare attesten bij verkoop downloaden via de website janssens-leroy.be.


Kenmerken

Algemeen

Adres:Bontestraat 25
Zottegem
Referentie:JL25200 lot 5
Vraagprijs:€ 135.000
Type:Grond
Ligging:Landelijk, Open ligging, Buiten bebouwde kom, Verkaveling, Gemeente
Perceeloppervlakte:810 m²
Perceelbreedte:16,03 m
Perceeldiepte:50 m
Type constructie:Traditioneel

Indeling

Tuin:Ja
Tuin oriëntatie:Noord-West

Comfort

Bushalte:Ja - op minder dan 500 m
Winkel:Ja - op 1000 m tot 1500 m
School:Ja - op 1000 m tot 1500 m
Kinderopvang:Ja - op 1000 m tot 1500 m
Bank:Ja - op 1000 m tot 1500 m
Ontspanning:Ja - op minder dan 500 m
Restaurant:Ja - op 1000 m tot 1500 m

Kadastrale gegevens

Kadastrale benaming:41017 ZOTTEGEM 6 AFD/ERWETEGEM/
Kadastrale Nummers:Deel van 0957CP0000 en 0959DP0000
Kadastrale Oppervlakte:810 m²

Informatieplicht

Stedenbouwkundige vergunning:Neen
Voorkooprecht:Neen
Verkavelingsvergunning van toepassing:Ja
Stedenbouwkundige bestemming:Woongebied
Dagvaarding en herstelvordering:Geen rechterlijke herstelmaatregel of bestuurlijke maatregel opgelegd
Overstromingsgevoelig:Geen overstromingsgevoelig gebied
Overstromingsgebied:Geen afgebakende zones
Overstromingskans perceel (P-score):A
Erfgoed:Geen beschermd erfgoed

Ligging

Neem vrijblijvend contact op


U moet akkoord gaan met het privacybeleid van deze website
* Verplicht in te vullen

Daan Janssens

BIV 512 904
VLABEL 005223157683
0474 25 55 78 daan@janssens-leroy.be

Niet gevonden wat u zoekt?

Schrijf u dan vrijblijvend in en blijf op de hoogte van ons meest recente aanbod.
Schrijf u in
Terug naar boven
Sluit menu Janssens & Leroy Makelaars BV